WEB現場見学会
2022.07.26
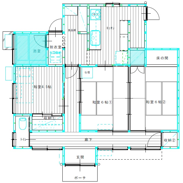
8月のWeb現場見学会【リフォーム】 トイレ・キッチンの水回りリフォーム
リフォームといえばキッチン、お風呂、トイレと水回りが多いですが
今回のお客様もキッチンとトイレのリフォームをご希望でした
ただ入れ替えるだけではなくキッチンスペースを分割して収納を増やすことで
使いやすく、片付けのストレスを少しでも減らすプランをご提案させて頂きました。



キッチン

トイレ

廊下

WEB現場見学会
今回、現場見学会を開催する住宅を、動画でご紹介いたします。
現地へお越しいただけないお客様でも、ご自宅のパソコン、あるいはお手元のスマートフォンで物件の内部を隅々までご覧いただけます。
物件詳細
- タイプ部分リフォーム
- 価格帯400〜500万円
- 家族構成大人 2人
360°パノラマ画像・VR現場見学会







