blog

8月のWeb現場見学会【リフォーム】 トイレ・キッチンの水回りリフォーム

8月のWeb現場見学会【リフォーム】 トイレ・キッチンの水回りリフォーム

リフォームといえばキッチン、お風呂、トイレと水回りが多いですが

 

今回のお客様もキッチンとトイレのリフォームをご希望でした

 

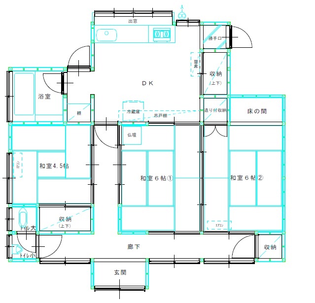
ただ入れ替えるだけではなくキッチンスペースを分割して収納を増やすことで

 

使いやすく、片付けのストレスを少しでも減らすプランをご提案させて頂きました。

 

 

 

 

 

 

 

 

キッチン

 

 

 

トイレ

 

 

廊下

 

 

CONTACT

家づくりをご検討の方は
お気軽にご相談ください。