real estate

中古物件

鼎切石4370-1中古住宅

売主
売り土地建物(築1.5年)
エアコン1台で冷暖房できる家
太陽光発電4.08kw
2台用カーポート

  • 物件概要
  • 地図/周辺環境
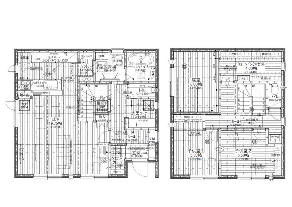
  • 間取り
価格
3800万円
所在地
飯田市鼎切石4370-1
交通
・JR飯田線切石駅 徒歩6分 ・飯田市立鼎小学校 徒歩25分
土地面積
281.18㎡(85.05坪) 
地目
宅地
駐車場
駐車場2台(普通車2台)
建物面積
104.33㎡(31.5坪)
構造
木造瓦葺2階建て
間取り
3LDK
完成時期
令和6年8月8日新築
建ぺい率
60%
容積率
200%
用途地域
第二種住居地域
小学校区
鼎小学校
中学校区
鼎中学校
情報登録日
2026年02月18日
情報更新日
2026年03月09日
次回更新予定日
2026年03月16日
  • DK

  • リビング

  • キッチン

  • キッチン

  • リビング

  • 脱衣所

  • ユニットバス

  • 1Fトイレ

  • 1F洗面

  • 玄関

  • ウォークスルークローゼット

  • 2Fトイレ

  • 2F手洗い

  • 洋室

スーパーマーケット
酒&業務スーパーモダンパック飯田店 車で2分
スーパーマーケット
西友伊賀良店 車で4分
コンビニ
セブンイレブン飯田切石店 徒歩3分
コンビニ
ファミリーマート飯田鼎切石店 徒歩2分

CONTACT

家づくりをご検討の方は
お気軽にご相談ください。